
1. Preis im ViCADo-CAD Wettbewerb!
05. April 2019
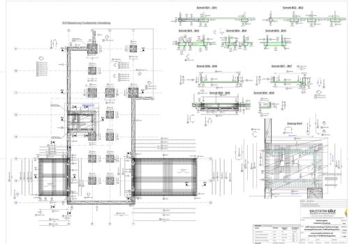
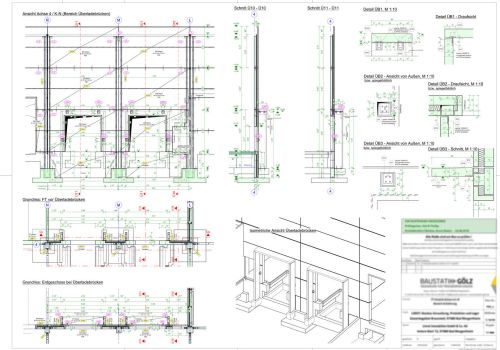
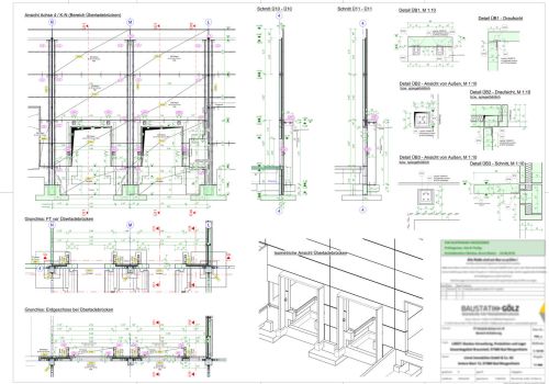
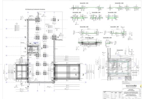
Mit dem Projekt Neubau Limot konnten wir in einem bundesweiten CAD-Wettbewerb die Jury überzeugen. Und wurden für unsere Leistungen mit dem ersten Preis ausgezeichnet!
Mit hervorragender Planungsqualität konnten wir uns gegen zahlreiche Mitbewerber durchsetzen und wieder einmal unsere Leistungsfähigkeit unter Beweis stellen.
Die über 250 Fertigteile konnten alle fehlerfrei passgenau und zügig montiert werden.
Nachzulesen in der MB-News 02/2019




